
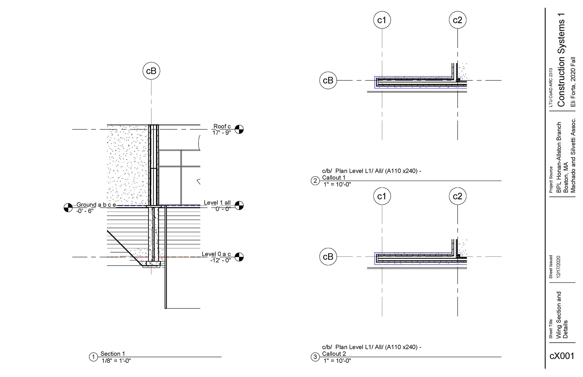
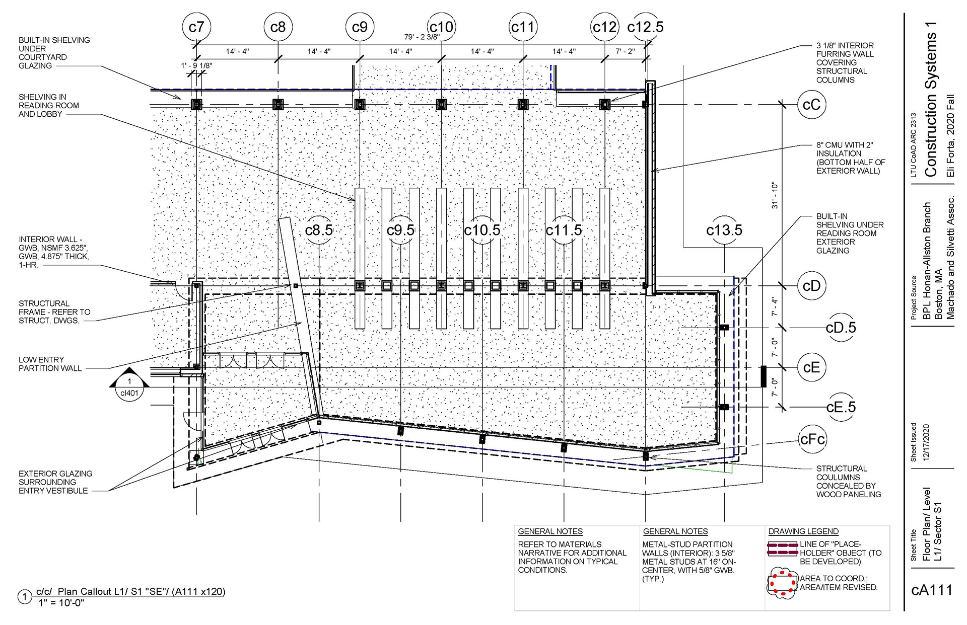
In this semester long assignment, students were tasked with recreating a complex existing work of architecture through the lens of construction systems. The building's documentation was broken up into phases that reflected how the building would be designed and built.
The first unit was creating the foundations for the building.



Unit 2 was creating the structural framing for the building and adding the roof decking.




Unit 3 was adding exterior and interior wall systems.






Unit 4 was roof and drainage systems.




Unit 5 was glazing and curtain walls.



Unit 7 was the final unit, dealing with interior materials and finishes.




The complete work set, in documentation order, not unit order, can be viewed below.
























