
In this semester long project, students were tasked with designing Eastern Market's Shed 7, a new structure situated at the end of the historic market in Detroit.
The work was split into four distinct phases: Morphology, Energy, Enclosure, and Assembly.

In Morphology, students were given a material, mass timber, and informed about the various programs of the site , with given size/dimension guidelines. Using Rhino + Grasshopper, parametric massing models were made to find optimal programmatic layouts. Then, a structural system was selected and used to design a building frame.



















In Energy, structural frames were wrapped in temporary walls as a way to study and effectively create a daylighting strategy for Shed 7. Additionally, the building needed to produce 600,000 kWh of solar energy annually, as well as receive all its heating from solar thermal arrays.

























In Enclosure, a proper building envelope had to be designed and implemented into Shed 7. Using knowledge from Construction Systems, a modular, pre-fabricated wall section had to be designed. Considerations included insulation, R-Values, waterproofing, and cladding appearance.

















In assembly, the final section of the project, all the prior research and design had to be coordinated. Until this point, students were not aware of their site. Now, with the introduction of Eastern Market as the building's location, a great deal of design had to go with situating the architecture on the site, which including mirroring it and skewing it a few degrees.








































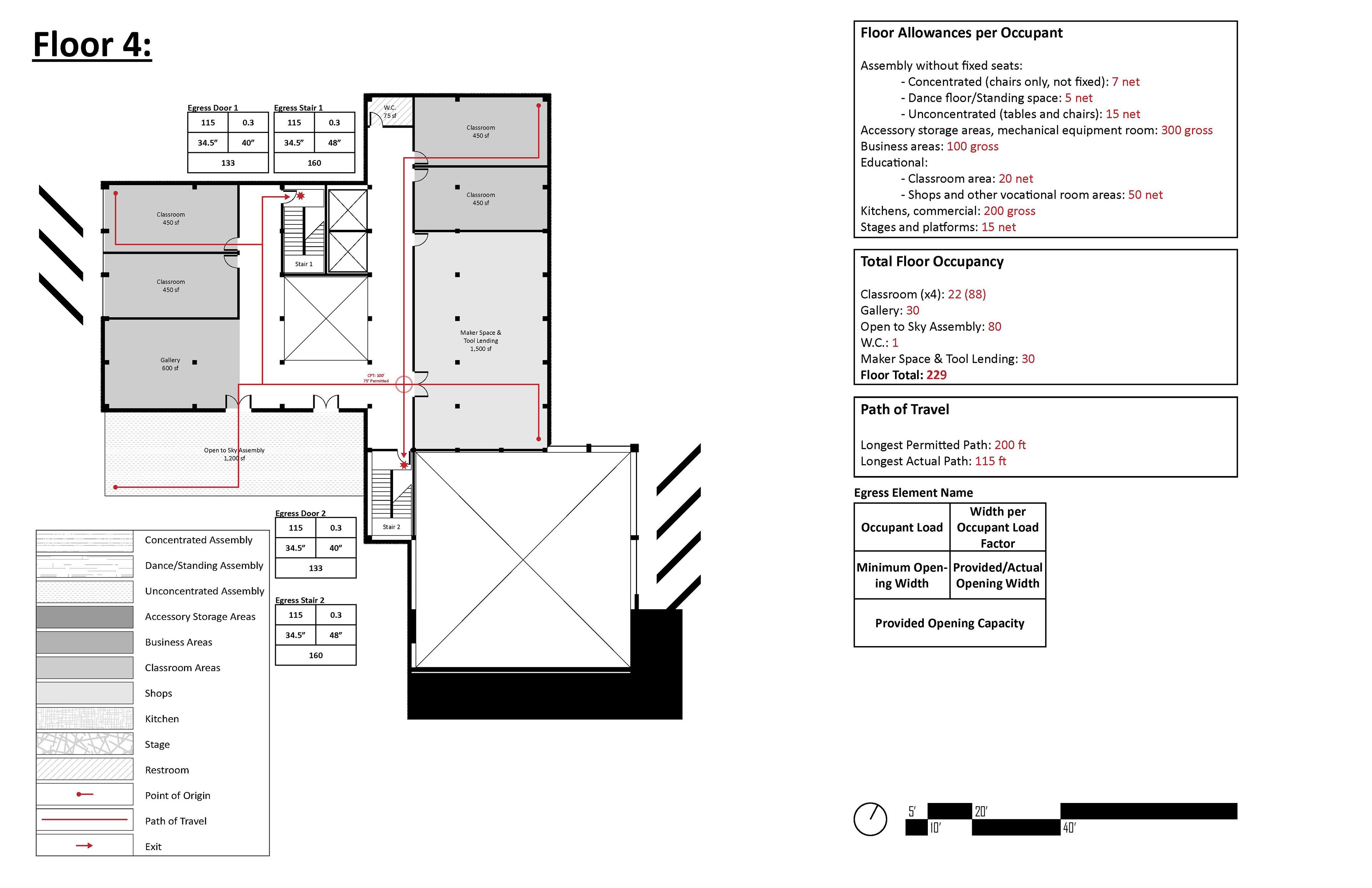
As a final validation, students had to look at the building code and identify various constraints in order to determine if their design complied with the code.










